Church design by Kamat & Rozario

Church Complex

Location: Bangalore, India
Status: Ongoing

Church design that is contemporary
POV of an upcoming Church complex design
Church complex design by Kamat & Rozario
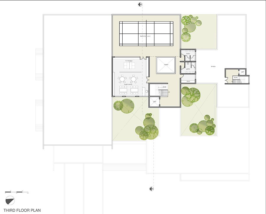
Floor plan & layout of Church design by Kamat & Rozario